Gemeinsam

Feiern

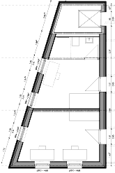
Gemeinsamer Innenraum Im Erdgeschoss befindet sich ein geschlossener Raum der eine Küchenzeile beinhaltet. Damit kann der Raum ganzjährig genutzt werden. Zum Garten hin kann der Raum geöffnet werden, so dass bei entsprechender Witterung der Aussenbereich mit zur Verfügung steht.

Die Konzeption sieht vor, dass die einzelnen Wohnungen für den täglichen Bedarf ausgelegt sind. Es gibt immer wieder Zeiten bei der die Notwendigkeit besteht, dass mehr Platz benötigt wird. Dazu ist dieser Raum vorgesehen.

Kommen zu einer Feier mehr Gäste als in die Wohnung passen ist dieser Raum der richtige Ort dafür. Ausgerüstet mit dem notwendigen Dingen, z. B. zusätzlichem Geschirr und Besteck, hat man hier vieles zur Verfügung, um die Feier als gelungenes Treffen zu veranstalten.

Die Nutzung des Raumes muss innerhalb der Wohnungseigentümergemeinschaft abgesprochen werden.

Arbeiten

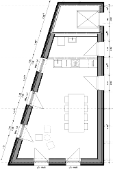
Arbeiten im Heimbüro Im ersten Stock gibt es Räume, die als Heimbüro genutzt werden können.

Arbeiten im Heimbüro hat etliche Vorteile. Die Zeit für die Fahrt zur Arbeitsstätte kann anderweitig genutzt werden. Durch den Wegfall der Fahrt entfällt auch der Einfluss auf die Umwelt, die so entlasstet wird. Wird die Fahrt zur Abeitsstätte in der Regel im Individualverkehr erbracht so ergibt sich auch ein Kostenvorteil.

Die Wohnungen sind so ausgelegt, dass sie nicht als Heimbüro gedacht sind. Das Arbeiten am heimischen Esstisch entspricht in keiner Weise einer optimalen Situation. Obwohl der Weg kurz ist entsteht trotzdem die Trennung von zuhause und Arbeit.

Die Heimbüroräume können von den Wohnungseigentümern gegen Erstattung der Betriebskosten genutzt werden und werden dann auch diesen zugeordnet.

Geniessen

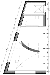
Geniessen Im Dachgeschoss befindet sich eine offene Terrasse.

Die Dachterrasse ist der Treffpunkt für die Gemeinschaft und für Gäste. Hier trifft man sich zu Kaffe und Kuchen, für ein Glas Bier oder Wein. Hier trifft man sich für eine Spielerunde mit Brettspiel oder Kartenspiel. Oder einfach nur um über Gott und die Welt zu reden.

Die Dachterrasse kann immer von jedem genutzt werden.